Woningen Renesse
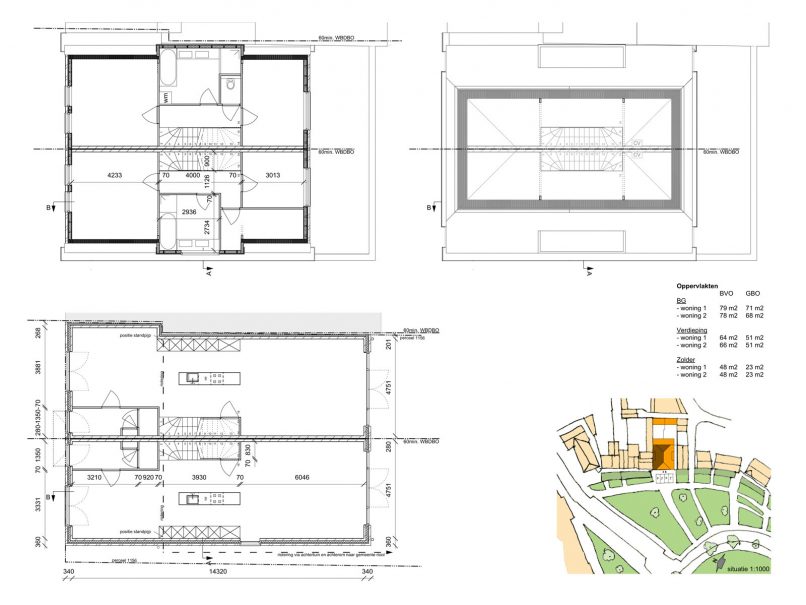
Van een gebouw van een voormalig bouwbedrijf wordt een deel herbestemd tot pension en een deel vervangen door twee nieuwe woningen onder een kap. De woningen worden in bouwteam ontwikkeld.
De woningen met een tuin en losse berging liggen aan het historisch plein in het centrum van Renesse.
In het ontwerp is rekeningen gehouden met de bestaande aaneengesloten wand van het plein. De moderne woningen worden zo onderdeel van het historische beeld.
Project Type
- Architectuur
Functie
- Woning
Team
- Victor Kooijman, Architect
- IDNA
Opdrachtgever
- Bouwbedrijf Braber Renesse bv
Locatie
- Renesse
Status
- in ontwikkeling




