Ontwerpvoorstel Atos
Normaalkracht heeft een ontwerpvoorstel gemaakt voor it-bedrijf Atos te Utrecht.
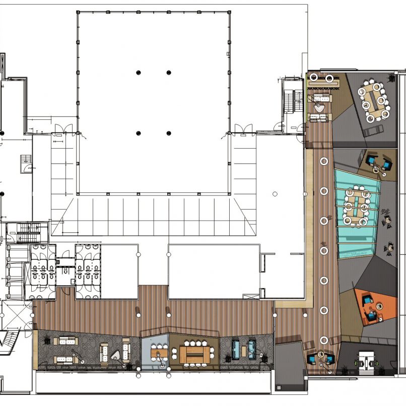
Een dynamische nieuwe indeling en de prominente plaats en het opvallende ontwerp van de scrum-plek moet de ruimte aantrekkelijker maken voor medewerkers en bezoekers.
De flexibele indeling speelt veel beter in op de huidige behoeften en versterkt een goede werkflow.
Project Type
- Interieur Architectuur
Functie
- Kantoor
Team
- Sander van Lanen, Interieur Architect
Opdrachtgever
Locatie
- Papendorpseweg, Utrecht
Status
- Voorstel









